Karel Doormanlaan 103

3572 NL Utrecht

€ 450.000,- k.k.
Alle foto's

Kenmerken

  • Vraagprijs€ 450.000,- k.k.
  • StatusBeschikbaar
  • TypePortiekflat
  • Woonoppervlakte73 m2
  • Bouwjaar1955
  • Inhoud241 m3
  • TuintypenGeen tuin
  • VoorzieningenLift, Glasvezel kabel
  • Soorten verwarmingBlokverwarming

Omschrijving

Voel je direct thuis in dit lichte en sfeervolle appartement met een fijne open indeling en een verrassend ruimtelijk gevoel.

Dit instapklare appartement is perfect voor starters die op zoek zijn naar comfort en gemak. Dankzij de nette afwerking en het mooie lichtinval oogt de woning heerlijk ruim en uitnodigend. De grote open keuken zorgt voor een fijne verbinding met de woonkamer, waardoor je hier gezellig kunt koken en tegelijkertijd in contact blijft met je gasten. Daarnaast beschikt het complex over een grote gemeenschappelijke tuin, een fijne plek om even buiten te zijn en te genieten van het groen.

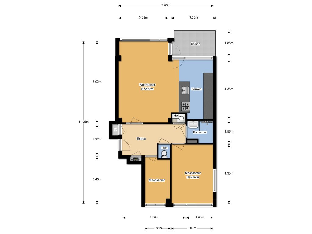
Indeling
Het appartement is gelegen op de vijfde verdieping en is bereikbaar via de trap of de lift. Via de centrale hal kom je het appartement binnen. De hal is ruim opgezet en beschikt over een praktische kast voor de garderobe. Vanuit hier heb je toegang tot alle vertrekken.

De woonkamer is licht en ruim en vormt het hart van de woning. Hier kun je een comfortabele zithoek creëren en genieten van de prettige sfeer.

De open keuken sluit naadloos aan op de woonkamer en is voorzien van diverse inbouwapparatuur, zoals een inductiekookplaat, afzuigkap, combi oven en een ingebouwde koelkast. Vanuit de keuken heb je direct toegang tot het balkon. Een fijne plek om even buiten te zitten met een kop koffie in de ochtendzon.

De woning beschikt over twee slaapkamers. De hoofdslaapkamer is ruim en biedt voldoende plek voor een groot bed en een kledingkast. De tweede slaapkamer is ideaal als werkkamer, logeerkamer of hobbyruimte.

De badkamer is netjes afgewerkt en voorzien van een ruime inloopdouche en een wastafel. Naast de badkamer bevindt zich een praktische vaste kast met de wasmachineaansluiting en de boiler. Daarnaast is er een separaat toilet aanwezig, wat zorgt voor extra comfort.

Extra informatie
Het appartement beschikt over een berging op de begane grond, voorzien van elektra.
In de koopovereenkomst zal een “niet zelf bewoond” clausule worden opgenomen.

Wijkinformatie – Zeeheldenbuurt
De Zeeheldenbuurt ligt aan de noordoostzijde van Utrecht en vormt een rustige schakel tussen de stad en de groenere randen richting De Bilt. De buurt heeft een gemoedelijke uitstraling met brede straten en een mix van bebouwing, wat zorgt voor een prettige woonomgeving voor starters die graag net buiten de drukte zitten, maar wel dichtbij alles willen zijn. In de directe omgeving zijn praktische voorzieningen aanwezig en voor een uitgebreider aanbod ligt de Biltstraat op korte afstand, bekend om haar diverse winkels, speciaalzaken en eetgelegenheden. Vanuit daar ben je ook zo in de binnenstad van Utrecht.
Voor wie graag buiten is, biedt de omgeving volop mogelijkheden. Richting De Bilt en het oosten van de stad vind je uitgestrekte groene gebieden en landgoederen die zich goed lenen voor een wandeling of sportmoment. Deze combinatie van stedelijke nabijheid en groene ruimte maakt de locatie aantrekkelijk voor een actieve levensstijl.
De bereikbaarheid is daarnaast goed geregeld. Utrecht Centraal is goed bereikbaar en vormt een belangrijk knooppunt voor trein- en busverbindingen. Ook het Utrecht Science Park is eenvoudig te bereiken, wat deze locatie interessant maakt voor werk of studie. Met diverse uitvalswegen in de buurt ben je bovendien snel onderweg richting omliggende steden.
Een rustige maar goed verbonden plek waar je het stadsleven en het groen moeiteloos combineert.

Plattegronden

Kaart

Street View