Van der Mondestraat 16A

3515 BH Utrecht

€ 450.000,- k.k.
Alle foto's

Kenmerken

  • Vraagprijs€ 450.000,- k.k.
  • StatusBeschikbaar
  • TypeTussenwoning
  • Woonoppervlakte56 m2
  • Perceel oppervlakte41 m2
  • Bouwjaar1904
  • Inhoud213 m3
  • TuintypenAchtertuin
  • PositieZuidwest
  • Soorten verwarmingCV ketel

Omschrijving

Voel je direct thuis in deze charmante tussenwoning in Tuinwijk, waar licht, comfort en sfeer samenkomen.

De ruime en lichte woonkamer, de fraaie whitewash lamelparketvloer en de knusse stadstuin op het zuidwesten zorgen voor een verrassend compleet geheel. Deze goed onderhouden woning is met zorg bewoond en ideaal voor starters die op zoek zijn naar een huis met karakter, een praktische indeling en een eigen uitstraling. Een woning die je echt van binnen moet ervaren!

Indeling
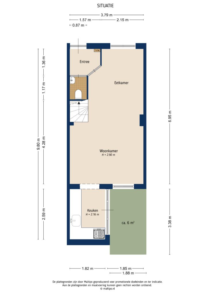
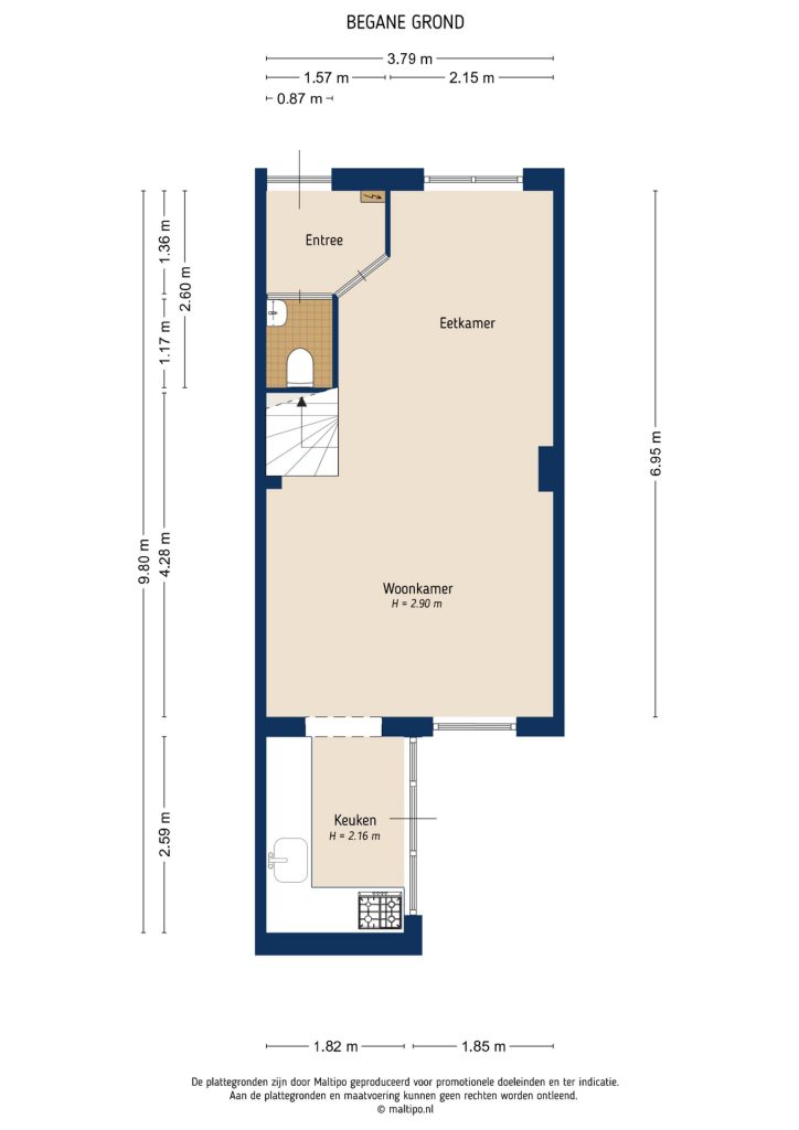
Begane grond
Via de entree bereik je de hal met toilet. Vanuit hier stap je de lichte woonkamer binnen, waar de grote raampartijen en hoge plafonds zorgen voor een prettige hoeveelheid daglicht en een open, uitnodigende sfeer. De stijlvolle lamelparketvloer geeft de ruimte extra warmte en karakter.
Aan de achterzijde bevindt zich de praktische en compleet ingerichte keuken. Deze is voorzien van diverse inbouwapparatuur, waaronder een koel-vriescombinatie, vaatwasser, combi-oven, ingebouwde wasmachine en een 4-pits gaskookplaat.
Vanuit de keuken heb je toegang tot de compacte, verzorgde stadstuin op het zuidwesten. De tuin is recent opnieuw betegeld en biedt een fijne plek om op zonnige dagen heerlijk buiten te zitten en te genieten van de middag- en avondzon.

Eerste verdieping
De overloop geeft toegang tot twee slaapkamers en de badkamer.
De ruime hoofdslaapkamer aan de achterzijde valt direct op door de hoogte en de brede dakkapel, wat zorgt voor een extra ruimtelijk gevoel. Daarnaast beschikt deze kamer over praktische vaste kastruimte. De zichtbare houten balken geven de kamer een unieke en sfeervolle uitstraling. Via een losse trap bereik je de entresol. Deze verrassend ruime extra verdieping is ideaal te gebruiken als bergruimte. Tevens bevindt zich hier de cv-opstelling.

De tweede kamer aan de voorzijde heeft een charmant karakter en is uitermate geschikt als slaapkamer, werk- of studeerkamer.
De badkamer is compact maar efficiënt ingericht en voorzien van een inloopdouche en wastafel – alles wat je nodig hebt, netjes en verzorgd

Extra informatie
• Sfeervolle houten balken in de hoofdslaapkamer
• Zonnige stadstuin gelegen op het zuidwesten
• Woning is geheel voorzien van dubbel glas
• De entresol is niet meegenomen in het woonoppervlak
Een instapklare woning op een fijne locatie, met een verrassend ruime beleving. Plan snel een bezichtiging en laat je verrassen!

Wonen in Tuinwijk

Tuinwijk-West ligt in Utrecht Noordoost, net buiten de drukte van de binnenstad en toch duidelijk verbonden met het stedelijke leven. De buurt heeft een herkenbare mix van rustige straten, karaktervolle gevels en plekken waar je gemakkelijk even blijft hangen. Rond het Willem van Noortplein en aan de Merelstraat vind je praktische winkels voor de dagelijkse boodschappen, aangevuld met koffiezaken en eetadresjes die de wijk een ontspannen, lokale sfeer geven. Voor starters is dit een prettige omgeving: compact, levendig en met alles dichtbij genoeg om het dagelijkse ritme eenvoudig te houden. Het Griftpark ligt als groene uitloopplek om de hoek en wordt veel gebruikt om te sporten, af te spreken of juist even los te komen van de stad. Ook de Vecht en de kades richting Lauwerecht geven de omgeving een open en afwisselend karakter. Het dichtstbijzijnde reguliere treinstation is Utrecht Overvecht, terwijl ook Utrecht Centraal goed bereikbaar is voor wie vaak de stad uit reist of gebruikmaakt van de vele verbindingen in en rond Utrecht. Met busverbindingen richting het centrum, de universiteitsgebieden en het centraal station voelt de buurt bovendien vanzelfsprekend aangesloten op de rest van de stad. Tegelijk blijft Tuinwijk-West overzichtelijk en vertrouwd, met een dagelijks straatbeeld waarin wonen, werken, boodschappen doen en ontspannen natuurlijk in elkaar overlopen. Op vrije dagen liggen de singels, de binnenstad en verschillende horecagebieden logisch binnen bereik, zonder dat de buurt haar eigen rustige basis verliest. Dat maakt de buurt aantrekkelijk voor wie graag stedelijk woont, maar niet midden in de drukte hoeft te zitten. Een fijne plek om de stad dichtbij te hebben en toch een eigen buurtgevoel te ervaren.

Plattegronden

Kaart

Street View