Nicolaas Sopingiusstraat 35

3553 TL Utrecht

€ 550.000,- k.k.
Alle foto's

Kenmerken

  • Vraagprijs€ 550.000,- k.k.
  • StatusBeschikbaar
  • TypeEindwoning
  • Woonoppervlakte82 m2
  • Perceel oppervlakte72 m2
  • Bouwjaar1919
  • Inhoud308 m3
  • TuintypenAchtertuin
  • PositieZuid
  • VoorzieningenRookkanaal, Glasvezel kabel
  • Soorten verwarmingCV ketel
  • LiggingenIn woonwijk

Omschrijving

Sfeervolle eindwoning met zonnige tuin op het zuiden en energielabel B.

Aan de Nicolaas Sopingiusstraat 35 in Utrecht staat deze instapklare en tot in de puntjes verzorgde eindwoning waar karakter, licht en comfort prachtig samenkomen. Dankzij de ligging op de hoek van de straat geniet je hier van extra veel lichtinval, wat zorgt voor een ruimtelijk en prettig woongevoel. De fijne tuin op het zuiden maakt dit huis extra aantrekkelijk. In de tuin bevindt zich bovendien een praktische berging die tevens dient als zijingang, ideaal om eenvoudig je fiets of zelfs een motor binnen te zetten en te beschikken over veel extra bergruimte.
Wat deze eindwoning extra bijzonder maakt, is dat diverse stijlkenmerken uit het oorspronkelijke bouwjaar behouden zijn gebleven. Denk aan paneeldeuren, een schouw en de kamer en suite, die samen zorgen voor sfeer en karakter. Tegelijkertijd heeft de eindwoning een moderne uitstraling gekregen die helemaal van nu is. De eigentijdse kleurstelling, de moderne keuken, de moderne badkamer, de sierlijsten op de wand in de eetkamer en de zorgvuldig gekozen verlichting zorgen voor een verzorgde en eigentijdse afwerking. Dankzij de hybride cv ketel warmtepomp, het energielabel B en de aanwezige vloer, muur en dakisolatie woon je hier bovendien comfortabel en energiezuinig.

Indeling

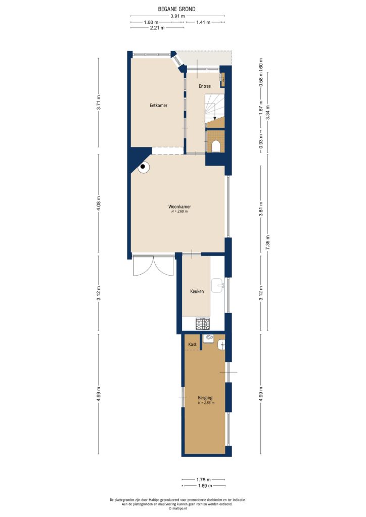
Begane grond
Via de entree kom je binnen in de hal met toilet en trapopgang. Aan de voorzijde bevindt zich de eetkamer, een sfeervolle ruimte waar je heerlijk kunt tafelen en gasten ontvangt in een setting vol karakter. De sierlijsten op de wand en de massief eikenhouten vloer met de zorgvuldig gekozen verlichting geven deze ruimte extra sfeer en uitstraling.

Aan de achterzijde ligt de zitkamer, aansluitend op de keuken en de tuin. Deze ruimte is extra bijzonder door het grote raam in de zijgevel, waardoor er opvallend veel daglicht naar binnen valt en de kamer heerlijk licht aanvoelt. Vanuit de zitkamer loop je zo door naar de keuken en de tuin, wat zorgt voor een fijne verbinding tussen de leefruimtes en buiten.

De eetkamer en zitkamer worden van elkaar gescheiden door de kamer en suite, wat niet alleen zorgt voor een karaktervolle indeling maar ook voor veel sfeer. De prachtige schouw versterkt dit gevoel van charme en authenticiteit. De indeling kan desgewenst ook worden omgedraaid, waardoor de ruimtes op verschillende manieren te gebruiken zijn.

De keuken ligt aan de achterzijde van de eindwoning en is praktisch ingericht. Je beschikt hier over een 4 pits fornuis, afzuigkap, oven, vaatwasser, combi koelkast en vriezer en een kokend water kraan.

De achtertuin ligt op het zuiden en is een heerlijke plek om van de zon te genieten. Van ongeveer 9:00 tot 17:30 zit je hier fijn in de zon. Met meerdere zitplekken en de directe verbinding met de zitkamer en keuken is dit een heerlijke buitenruimte om te ontspannen, buiten te eten en lange zomerdagen door te brengen.

In de tuin bevindt zich de aangebouwde berging die half steen is en half van hout, voorzien van elektra, water en verwarming. Deze ruimte is niet alleen ideaal voor het opbergen van spullen, fietsen of gereedschap, maar functioneert ook als praktische zijingang. Dankzij deze indeling kun je hier eenvoudig een fiets én zelfs een motor binnen zetten, wat deze ruimte extra veelzijdig maakt.

Eerste verdieping
Op de eerste verdieping bevinden zich twee slaapkamers en de badkamer. De grote slaapkamer is opvallend licht dankzij de royale raampartijen en voelt ruim en prettig aan. De tweede kamer is ideaal als kinderkamer, werkkamer of kastenkamer. Daarmee is deze verdieping zeer geschikt voor zowel jonge gezinnen als thuiswerkers.
De moderne badkamer is compleet uitgevoerd met een ligbad, douche, toilet en wastafelmeubel.

Tweede verdieping
Op de overloop van de tweede verdieping bevinden zich de aansluitingen voor het wasgoed. Daarnaast is hier praktische bergruimte aanwezig, onder meer achter de knieschotten en in de inbouwkasten. Dit maakt deze verdieping extra functioneel en prettig in gebruik.
Aansluitend bevindt zich de derde slaapkamer met een speelse kapconstructie, veel sfeer en een warme grenen vloer. Deze kamer is uitstekend te gebruiken als slaapkamer, werkruimte, logeerkamer of hobbyruimte.

Extra informatie
Oplevering in overleg
Hybride cv ketel warmtepomp

Zie jij jezelf hier al wonen, in deze sfeervolle eindwoning met zonnige tuin op het zuiden? Plan snel een bezichtiging en ervaar zelf de sfeer, het licht en het comfort van deze fijne eindwoning!

Wijkinformatie – Zuilen (Noordoost)
De Nicolaas Sopingiusstraat ligt in het noordelijke deel van Zuilen, binnen de buurt Zuilen-Noordoost, een omgeving die zich kenmerkt door een prettige mix van levendigheid en rust. In de directe omgeving ligt het geliefde Julianapark, een groene plek waar buurtbewoners samenkomen voor een wandeling, sportmoment of om simpelweg even buiten te zijn. Ook langs de Vecht is het aangenaam verblijven, met mooie wandelroutes richting Oud-Zuilen.
Voor de dagelijkse boodschappen zijn er diverse mogelijkheden in de buurt, waaronder winkelcentrum Rokade en de winkels langs de Amsterdamsestraatweg, waar ook een gevarieerd aanbod aan speciaalzaken en eetgelegenheden te vinden is. In de wijk en omliggende straten zijn meerdere scholen aanwezig, wat het gebied ook aantrekkelijk maakt voor een brede doelgroep. Daarnaast zijn er verschillende sportverenigingen en voorzieningen die bijdragen aan een actieve leefomgeving.
De bereikbaarheid is goed, met station Utrecht Zuilen op korte afstand en diverse busverbindingen richting de stad. Ook Utrecht Centraal is goed bereikbaar. Zuilen is daarmee een wijk die zich blijft ontwikkelen, met een fijne balans tussen stedelijke dynamiek en een vertrouwde woonomgeving. Een plek waar je je snel thuis voelt en waar het dagelijks leven zich op een ontspannen manier afspeelt.

Plattegronden

Kaart

Street View