Prof. Zonnebloemlaan 14

3571 KP Utrecht

€ 750.000,- k.k.
Alle foto's

Kenmerken

  • Vraagprijs€ 750.000,- k.k.
  • StatusBeschikbaar
  • TypeEindwoning
  • Woonoppervlakte122 m2
  • Perceel oppervlakte96 m2
  • Bouwjaar1999
  • Inhoud434 m3
  • TuintypenAchtertuin
  • PositieZuid
  • VoorzieningenMechanische ventilatie, Airconditioning, Glasvezel kabel, Zonnepanelen
  • Soorten verwarmingCV ketel, Vloerverwarming gedeeltelijk
  • LiggingenAan water, Aan rustige weg, In woonwijk

Omschrijving

Comfortabele energiezuinige hoekwoning met uitzicht op water in de geliefde wijk Tuindorp.

Deze ruime en instapklare eindwoning heeft alles in huis voor comfortabel wonen. Denk aan een lichte woonverdieping, een moderne keuken en badkamer, drie fijne slaapkamers én een zonnige tuin op het zuiden met achterom. De combinatie van rust, ruimte en een mooie ligging aan het water maakt dit een woning die je echt gezien moet hebben.

Indeling
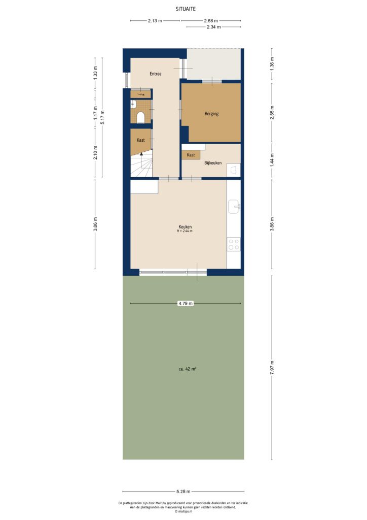
Begane grond
Via de entree kom je binnen in de hal met modern toilet en trapopgang. Aan de achterzijde bevindt zich de moderne woon/eetkeuken, strak afgewerkt en voorzien van volop comfort. Je vindt hier een vaatwasser, Quooker, warmhoudlade, koelkast, inductie met flex zone, afzuigkap en oven. De keuken is bovendien voorzien van airco.

Aansluitend aan de keuken ligt de bijkeuken met de witgoedaansluitingen en extra opbergruimte. De berging is ideaal voor het stallen van fietsen en het opbergen van spullen, de berging is ook vanaf de voorzijde toegankelijk.

Eerste verdieping
Op deze verdieping bevindt zich de woonkamer. De grote raampartijen zorgen voor veel daglicht en geven de verdieping een lichte en open sfeer. Vanuit de woonkamer heb je een prettig uitzicht op het groen en het water. Ook deze verdieping is voorzien van airco, waardoor het hier het hele jaar door comfortabel wonen is.

Tweede verdieping
De tweede verdieping beschikt over drie slaapkamers. De grootste slaapkamer ligt aan de voorzijde en is voorzien van een kastenwand. De slaapkamers aan de achterzijde zijn ook licht en multifunctioneel in te delen, bijvoorbeeld als kinderkamer, werkkamer of logeerkamer.

De moderne badkamer is vernieuwd in 2021 en uitgevoerd met een ligbad met whirlpool functie, douche, toilet en een stijlvol wastafelmeubel. Op de overloop bevindt zich ook een airco en daarnaast een kast met de cv opstelling.

Tuin
Vanuit de keuken stap je zo de zonnige achtertuin in. Dankzij de ligging op het zuiden is dit een heerlijke plek om van de zon te genieten, gezellig buiten te eten of lange zomeravonden door te brengen met vrienden en familie. De tuin beschikt daarnaast over een praktische achterom en sluit mooi aan op de rustige ligging van de woning naast het water.

Extra informatie
• 15 zonnepanelen
• Alle ramen voorzien van horren
• Vloerverwarming
• Airco aanwezig op iedere verdieping
• Beregeningsysteem in de tuin
• Waterontharder

Zie jij jezelf hier al zitten, zomers lang tafelen in de zonnige achtertuin en wonen op deze fijne plek? Plan snel een bezichtiging en ontdek zelf de charme van deze fijne woning.

Wijkinformatie – Tuindorp
Tuindorp is een karakteristieke en geliefde buurt in het noordoosten van Utrecht, waar rust en levendigheid op een natuurlijke manier samenkomen. De wijk staat bekend om haar groene lanen, brede straten. Hier woon je in een omgeving waar het dagelijkse leven zich in een ontspannen tempo afspeelt en waar buren elkaar nog groeten. In de directe omgeving zijn diverse scholen en opvanglocaties aanwezig, wat bijdraagt aan een vertrouwde en toegankelijke sfeer voor gezinnen.
Voor de dagelijkse boodschappen ligt winkelcentrum De Gaard om de hoek, een bekend en praktisch winkelgebied met een compleet aanbod aan supermarkten, verswinkels en kleine eetgelegenheden. Ook zijn er in de buurt verschillende sportvoorzieningen en speelplekken te vinden, en vormt het nabijgelegen Griftpark een fijne plek voor een wandeling, een middag buiten of om even tot rust te komen in het groen. Daarnaast zijn ook de groene gebieden richting de Vecht en het Noorderpark goed bereikbaar, wat zorgt voor extra mogelijkheden om eropuit te gaan.
De bereikbaarheid is prettig, met goede fietsverbindingen richting het centrum en omliggende wijken. Station Utrecht Overvecht is het dichtstbijzijnde treinstation en biedt een praktische aansluiting op het regionale en landelijke spoornet. Ook Utrecht Centraal en in-en uitvalswegen zijn goed bereikbaar, wat het geheel extra aantrekkelijk maakt voor forenzen. Tuindorp biedt een harmonieuze combinatie van groen, voorzieningen en een fijne woonomgeving waar het dagelijks leven comfortabel samenkomt. Een plek waar rust en stadse nabijheid mooi in balans zijn.

Plattegronden

Kaart

Street View