Brochure
Verkocht onder voorbehoud

Zeemanlaan 190

3572 ZJ Utrecht

€ 450.000 k.k.
  • 89 m² wonen
  • 2 slaapkamers
  • C energielabel

Omschrijving

Word wakker met een prachtig uitzicht en geniet van het licht dat hier de hele dag naar binnen stroomt.
Op de vierde verdieping van het complex aan de Zeemanlaan ligt dit lichte en verzorgde hoek appartement met balkon op het zuiden. Dankzij de hoekligging profiteer je van extra ramen en veel natuurlijk licht. De woning is netjes afgewerkt en biedt een comfortabele indeling met twee slaapkamers. Ideaal voor starters die ruim en prettig willen wonen op een goede locatie, dichtbij centrum van Utrecht.

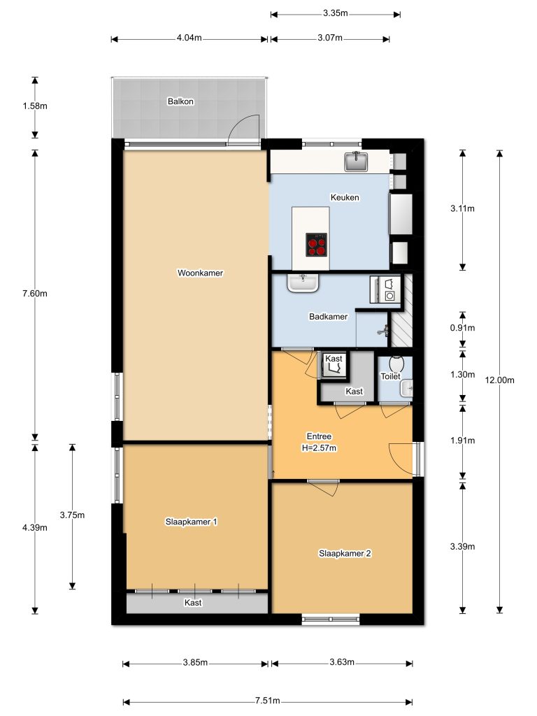
Indeling
Via de centrale entree van het complex bereik je met de trap of de lift de vierde verdieping. Hier stap je binnen in de hal van het appartement, die toegang geeft tot alle ruimtes in de woning. In de hal vind je ook een praktische bergkast en het separate toilet.

De woonkamer is licht en ruim en vormt een fijne plek om te ontspannen of gezellig samen te zijn. Dankzij de grote raampartijen en de hoekligging voelt de ruimte extra open en prettig aan. Vanuit de woonkamer loop je zo het balkon op het zuiden op. Hier geniet je van de zon en een vrij uitzicht over de omgeving en in de verte de domtoren!
De keuken is modern en praktisch ingericht met een kookeiland en veel werkruimte. Hier kook je met gemak je favoriete gerechten terwijl je in contact blijft met de woonkamer. De keuken is voorzien van diverse apparatuur, waaronder een inductiekookplaat met afzuigkap, een oven en een ruime Amerikaanse koelkast.
De woning beschikt over twee slaapkamers. De grootste slaapkamer is voorzien van een vaste kast, wat zorgt voor handige opbergruimte. De tweede slaapkamer is ideaal als werkruimte, logeerkamer, hobbykamer of als babykamer voor nu of in de toekomst

De badkamer is netjes afgewerkt en voorzien van een douche, een wastafelmeubel en aansluitingen voor zowel een wasmachine als een droger.

Extra informatie
- Berging op de begane grond van het wooncomplex, voorzien van elektra.
- In de koopovereenkomst zullen wij een "niet zelf bewoond" clausule opnemen
- In de service kosten van €399,70 zit een voorschot bedrag van €75,- p.m. voor stookkosten
- Oplevering in overleg.

Zie jij jezelf hier al wonen? Plan snel een bezichtiging en ervaar zelf het licht, de ruimte en de fijne ligging van dit appartement!

Wijkinformatie – Zeeheldenbuurt
In de Zeeheldenbuurt, onderdeel van Utrecht Noordoost, woon je in een sfeervolle stadsbuurt met een prettig evenwicht tussen levendigheid en ontspanning. De karakteristieke straten en het groene beeld geven de buurt een eigen, toegankelijke sfeer. Op korte afstand ligt de Biltstraat, met een gevarieerd aanbod aan winkels, speciaalzaken en fijne adressen voor koffie of een hapje eten. Voor dagelijkse boodschappen is ook winkelcentrum De Gaard een logische voorziening in de omgeving. Wie graag buiten is, heeft het Griftpark dichtbij, een geliefde plek om te sporten, wandelen of gewoon even de drukte van de stad te laten varen. Ook de singels en de binnenstad liggen prettig binnen bereik, waardoor cultuur, horeca en andere Utrechtse hotspots altijd dichtbij voelen. De buurt is daarnaast goed aangesloten op het openbaar vervoer, met snelle verbindingen richting het centrum en Utrecht Centraal. Het dichtstbijzijnde station is Utrecht Overvecht, terwijl ook Utrecht Centraal goed bereikbaar is. Daarmee is dit een aantrekkelijke plek voor starters die graag stedelijk wonen, maar ook waarde hechten aan een buurt met rust, groen en een herkenbaar eigen karakter. Een fijne plek om thuis te komen na een dag in de stad.

Kenmerken

Overdracht

Vraagprijs
€ 450.000 k.k.
Status
Verkocht onder voorbehoud
Aanvaarding
In overleg
Prijs per m²
€ 5.056

Bouw

Soort object
Appartement
Soort appartement
Portiekflat
Soort bouw
Bestaande bouw
Bouwjaar
1974
Soort dak
Plat dak – Bitumineuze dakbedekking

Oppervlakten en inhoud

Wonen
89 m²
Gebouwgebonden buitenruimte
6 m²
Externe bergruimte
10 m²
Inhoud
294 m³

Indeling

Aantal kamers
3 (2 slaapkamers)
Aantal badkamers
1
Badkamervoorzieningen
Douche, Wastafelmeubel, Wasmachineaansluiting
Woonlaag
4e verdieping
Aantal woonlagen in app.
1

Energie

Energielabel
C
Verwarming
Stadsverwarming
Warm water
Elektrische boiler eigendom

Buitenruimte

Tuin
Geen tuin

Vereniging van Eigenaars

Bijdrage VvE
€ 399,70 per maand
Inschrijving KvK
Ja
Jaarlijkse vergadering
Ja
Periodieke bijdrage
Ja
Reservefonds
Ja
Onderhoudsplan
Ja
Opstalverzekering
Ja

Staat van onderhoud

Binnen
Goed
Buiten
Goed

Kadastrale gegevens

Gemeente
Utrecht
Sectie
L
Perceel
2567

Plattegrond

Op de kaart

De buurt

Buurtinformatie laden…

Veelgestelde vragen

Kan ik een bezichtiging aanvragen?
Ja, via de knop "Vraag bezichtiging aan" hierboven.
Wat is de procedure bij een bod?
Wij Makelaardij begeleidt je van bod tot sleutel. Neem contact op voor meer informatie.
Kan ik een taxatie aanvragen?
Ja, wij zijn NWWI-gecertificeerd taxateur. Zie onze taxatie-pagina.

Interesse in Zeemanlaan 190?

Plan een bezichtiging of vraag meer informatie aan.